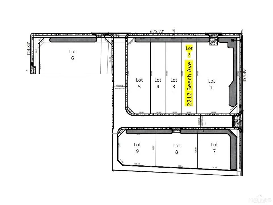
2212 Beech Avenue, McAllen, TX

$173,865

Previous Next

11,592

Square feet

0.27

Acres

About 2212 Beech Avenue

Discover the ultimate commercial opportunity at 2212 Beech Ave, McAllen, TX! This specific lot #2, spanning 0.26 acres (11,591.50 sq ft), offers unmatched potential for warehouse development. Fully developed and improved with sewer, water, and electricity, these lots are ready for you to bring your project to life and start building. With 9 lots available in various sizes, seize the chance to build your ideal warehouse and capitalize on the booming demand in this thriving business hub. Perfectly situated with easy access to major transportation routes and surrounded by a flurry of commercial activity, these lots present an irresistible investment opportunity. Don't miss your chance to be part of McAllen's dynamic landscape – seize this opportunity now and unlock the door to limitless possibilities!

Features of 2212 Beech Avenue

MLS® # 427885
Price $173,865
Square Footage 11,592
Acres 0.27
Type Land
Sub-Type Commercial
Status Active

Community Information

Address 2212 Beech Avenue
Subdivision Gosmar
City McAllen
County Hidalgo
State TX
Zip Code 78501

Amenities

Utilities City Garbage, Water Connected, Sewer Connected
Is Waterfront No
Has Pool No

Interior

Fireplace No
Has Basement No

Exterior

Lot Description Irregular Lot

School Information

District McAllen ISD
Elementary Wilson
Middle Travis
High McAllen H.S.

Additional Information

Date Listed March 15th, 2024
Zoning C3
Foreclosure No
Short Sale No

Listing Details

AgentLeslie J. De Leon
OfficeAbolengo Properties LLC
Contact Info956-328-6967

Listing Map

Request a Showing

Provide a valid email address.
When would you like to view this property?